Planung, Projektierung
& CAD-Konstruktion
Optimale Planung für optimale Ergebnisse.
Unsere Devise: Alles was im Vorfeld geklärt wird, macht das Endprodukt ausgereifter und sicherer. Daher steht am Anfang jedes Projekts bei HS-Steuerungstechnik® die individuelle und intensive Beratung und damit verbundenen Fragestellungen durch unsere Projektleiter. Im Anschluss erstellen unsere erfahrenen Ingenieure und Techniker Ihre individuelle Komplettlösung für Ihre freiprogrammierbare Steuerung.
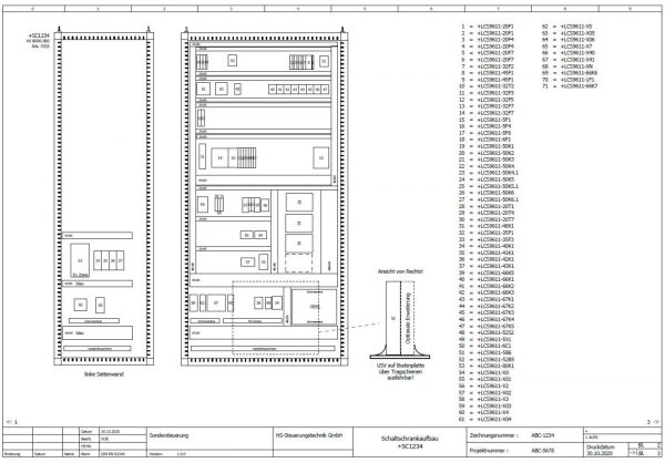
- Schaltplanerstellung (EPLAN)
- Dokumentation nach geltenden Richtlinien, Bestimmungen
und Kundenspezifikationen - Auswahl optimal abgestimmter Systemkomponenten
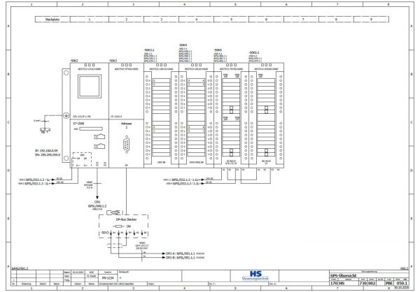
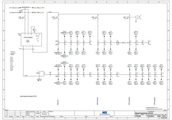
- Detaillierte Ausarbeitung der Automatisierungslösung
- Abklärung der Rahmenbedingungen
- Funktionen
- Platzbedarf Schaltschrank
- Umweltbedingungen
- Auswahl der Komponenten
- Gestaltung Innen- und Außenaufbau
- Konzeptionierung
- Endprodukt: Schaltplan





